Сдается коммерческая, 60 кв.м., 1/9 эт
Обзор№ - 2326
| Арендная плата (Помесячно) | 60 000 |
|---|---|
| Цена кв.м. в год | 0 |
| Коммунальные услуги включены | Нет |
| Тип здания | Жилой дом |
| Тип парковки | На улице |
| Вход cian (avito) | Общий с улицы |
| Тип аренды | Прямая |
| Ремонт | Хороший |
| Планировка cian | Открытая |
| Планировка avito | Открытая |
| Отделка помещения коммерческая | Офисная |
| Право собственности | Собственник |
| Залог (avito) | Без залога |
| Способ связи avito | По телефону и в сообщениях |
| Тип коммерческой | Помещение свободного назначения |
| Площадь, кв.м. | 60 |
| Этаж | 1 |
| Этажность | 9 |
Адрес
| Район города | Железнодорожный |
|---|---|
| Улица | проспект Свободный |
| Номер дома | 27 |
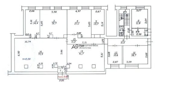
Сдается помещение свободного назначения 60м2 из общей площади 282м2 (под офис/магазин) на первой линии с удобными подъездными путями и парковкой.
Свет, вода, тепло, коммунальные платежи. Охрана, телефон, интернет.
Возможно размещение: аптека, оптика, одежда, отделочные материалы, радиотехника, кофейня и т.д.
Возможна сдача в аренду торговой площади частями.
Звоните или пишите! Рады будем рассмотреть ваши предложения, подобрать другие варианты!
* Указанные коммерческие условия не являются публичной офертой и могут подлежать пересмотру.













